Budynki zrównoważone

Październik 20, 2025

Centrum dla odwiedzających Park Narodowy Snæfellsjökull na Islandii

Centrum dla odwiedzających Park Narodowy Snæfellsjökull  na Islandii | Autor projektu: Arkís arkitektar | zdjęcie: Karl Vilhjálmsson
Centrum dla odwiedzających Park Narodowy Snæfellsjökull na Islandii | Autor projektu: Arkís arkitektar | zdjęcie: Karl Vilhjálmsson

W miejscowości Hellissandur na zachodnim półwyspie Snæfellsnes na Islandii powstało wyjątkowe Centrum dla odwiedzających Park Narodowy Snæfellsjökull, zaprojektowane przez islandzką pracownię Arkís arkitektar. Projekt zdobył pierwszą nagrodę w otwartym konkursie architektonicznym w 2006 roku, a budowa rozpoczęła się w 2020 i zakończyła w 2022 roku. Obiekt został w całości zaprojektowany i zrealizowany zgodnie z międzynarodowym certyfikatem BREEAM.

Architektura, która staje się ścieżką i doświadczeniem

Centrum w Hellissandur to znacznie więcej niż budynek – to ścieżka spacerowa, punkt widokowy i żywe centrum kultury i natury. Jego forma, kształt i funkcja zostały zainspirowane lokalną fauną, krajobrazem i kulturą, a celem projektu było wzmocnienie doświadczeń odwiedzających podczas pobytu w parku.

Główna część obiektu nosi nazwę Lodowcowy Przylądek (Jökulhöfði). Inspiracją dla projektu były oczy wieloryba, które – w przeciwieństwie do ludzkich – znajdują się po obu stronach głowy, pozwalając postrzegać świat z dwóch różnych perspektyw. W podobny sposób Lodowcowy Przylądek oferuje odwiedzającym odmienne, niecodzienne spojrzenie na otoczenie.

Zdjęcie: Karl Vilhjálmsson
Centrum dla zwiedzających z lodowcem Snæfellsjökull w tle. | Zdjęcie: Karl Vilhjálmsson
Koncepcja projektu inspirowana jest otaczającą przyrodą. | Zdjęcie: Karl Vilhjálmsson
Przez środek budynku przebiega ścieżka, dzięki czemu zwiedzający mogą przejść bezpośrednio z jednej strony budynku na drugą. | Zdjęcie: Karl Vilhjálmsson

Subtelna integracja z krajobrazem

Lodowcowy Przylądek nie dominuje nad swoim otoczeniem – wręcz przeciwnie - wtapia się w krajobraz lawowy, pozostając jednocześnie rozpoznawalnym punktem orientacyjnym. Z głównej drogi jego forma jest widoczna, ale nie w pełni uchwytna. Dopiero po przybyciu na miejsce i wejściu na ścieżkę prowadzącą przez zastygłą lawę, budynek stopniowo się odsłania.

Ścieżka z parkingu prowadzi ku budynkowi, przecinając pole lawy, a linia wzroku jest celowo ograniczona, aby stworzyć efekt stopniowego odkrywania. W miarę zbliżania się, Centrum ujawnia swoje otoczenie – przestrzeń edukacji, kultury i rekreacji, które łączą się w swoisty „tygiel doświadczeń”. Z tej przestrzeni ścieżka kontynuuje bieg w górę przylądka, oferując panoramiczne widoki na lodowiec Snæfellsjökull, morze i okoliczne wzgórza.

Nowe podejście do projektowania w strefie sejsmicznej

Jednym z kluczowych celów projektu było stworzenie budynku, który powstanie przy minimalnej ingerencji w środowisko i sprawi wrażenie, jakby był naturalnym elementem krajobrazu. Aby to osiągnąć, część obiektu została zaprojektowana tak, by unosiła się nad zastygłą lawą, co wymagało nowatorskich rozwiązań konstrukcyjnych w obszarze aktywnym sejsmicznie.

Projekt wymusił opracowanie nowego podejścia do projektowania konstrukcji wspornikowych, które są wyjątkowo wymagające w takich warunkach. Efektem jest architektura lekka, subtelna, ale technicznie zaawansowana.

Koncepcja architektoniczna  – Przylądek Lodowcowy Ości Ryby

Forma budynku została podzielona na dwie główne części nazwane: Przylądek Lodowcowy i Ości Ryby. Przylądek Lodowcowy pełni funkcję zaplecza dla pracowników parku narodowego. Ości Ryby mieści przestrzeń ekspozycyjną, kawiarnię i salę wykładową. Różnicę między tymi częściami podkreśla zastosowanie dwóch odmiennych rodzajów drewnianych elewacji – poziomej na części Przylądka lodowcowego i pionowej na części Ości Ryby.

Przez środek obiektu przebiega ścieżka dla pieszych, umożliwiająca przejście przez budynek z jednej strony na drugą. Po obu stronach umieszczono schody prowadzące na dach, który pełni funkcję tarasu widokowego. Z jego poziomu rozciąga się pełna panorama na lodowiec Snæfellsjökull, ocean i wioskę Hellissandur.

Ściany zewnętrzne budynku pokryte są dwoma różnymi rodzajami okładzin drewnianych. | Zdjęcie: Karl Vilhjálmsson
Schody po obu stronach budynku prowadzą na taras widokowy na dachu, z którego roztacza się panoramiczny widok na lodowiec Snæfellsjökull i wioskę Hellisandur. | Zdjęcie: Karl Vilhjálmsson
Ściany zewnętrzne budynku pokryte są dwoma różnymi rodzajami okładzin drewnianych. Zdjęcie: Karl Vilhjálmsson
Kawiarnia i salon wystawowy Zdjęcie: Karl Vilhjálmsson
Przestrzeń wystawiennicza | Zdjęcie: Karl Vilhjálmsson
Przestrzeń edukacyjna | Zdjęcie: Karl Vilhjálmsson
Centrum dla odwiedzających park narodowy zostało w całości zaprojektowane i zbudowane zgodnie z międzynarodowym standardem certyfikacji BREEAM, który kładzie nacisk na zrównoważony rozwój i odpowiedzialność za środowisko. | Zdjęcie: Karl Vilhjálmsson
Kawiarnia i salon wystawowy | Zdjęcie: Karl Vilhjálmsson

Zrównoważony rozwój i odpowiedzialność środowiskowa

Projekt i realizacja w pełni odpowiadają wymogom certyfikatu BREEAM – jednego z najbardziej restrykcyjnych systemów certyfikacji środowiskowej na świecie. Wykorzystano materiały o niskim wpływie na środowisko, a każdy etap budowy był monitorowany pod kątem ograniczenia i pomiaru odpadów.

Wszystkie elementy drewniane pochodzą z certyfikowanych źródeł FSC, co gwarantuje pełną identyfikowalność materiału. Wybrane materiały charakteryzują się niskimi wymaganiami konserwacyjnymi, eliminując potrzebę zewnętrznej pielęgnacji i umożliwiając naturalne starzenie się powierzchni bez utraty trwałości.

System BREEAM ocenia nie tylko rozwiązania techniczne, ale także integrację społeczną i krajobrazową. W projekcie centrum szczególną uwagę zwrócono na spójność z otaczającą infrastrukturą pieszą i rowerową. Budynek jest dostępny z obu stron, a ścieżka przechodząca przez jego środek tworzy płynne połączenie z trasami w obrębie parku narodowego, zachęcając do poruszania się bez użycia samochodu.

Architektura, która zmienia sposób postrzegania

Twórcy obiektu podkreślają, że Glacial Cape nie jest monumentalnym symbolem, lecz miejscem, które zmienia sposób postrzegania przestrzeni – oferując wiele perspektyw, podobnie jak wieloryb postrzega świat z dwóch stron. W ten sposób architektura staje się poetyckim łącznikiem między człowiekiem a naturą, zapraszając do odkrywania, refleksji i doświadczenia Islandii w sposób głęboko zmysłowy.

Jednym z głównych celów przy projektowaniu budynku w tej lokalizacji było, aby jego budowa spowodowała jak najmniejsze zakłócenia. | Zdjęcie: Karl Vilhjálmsson

Zdjęcie: Karl Vilhjálmsson

Zdjęcie: Karl Vilhjálmsson
Oświetlenie zaprojektowane przez Arkis architects | Zdjęcie: Karl Vilhjálmsson

Karta techniczna projektu

  • Nazwa projektu: Visitor Center w Hellissandur
  • Adres: Sandahraun 5, 360 Hellissandur, Islandia
  • Architekci: Arkís arkitektar, Vesturvör 7, 200 Kópavogur
  • Inwestor: The State Construction Agency
  • Powierzchnia użytkowa: 710 m²
  • Lokalizacja: N64° 54’ 49.465” W23° 53’ 21.027
  • Konkurs: 1. nagroda w konkursie otwartym (2006)
  • Zakończenie budowy: 2022
  • Fotograf: Karl Vilhjálmsson
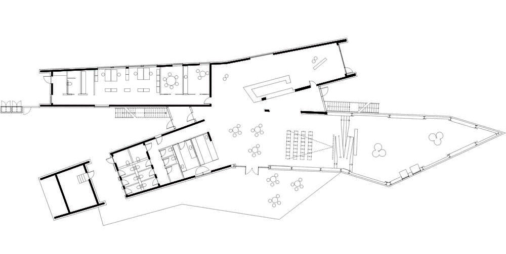
Plan piętra Centrum dla zwiedzających | rys.: Arkis architects
Przekrój Centrum dla zwiedzających | rys.: Arkis architects
Jednym z głównych założeń projektu było, by budowa przebiegła z możliwie najmniejszą ingerencją w otoczenie i by budynek sprawiał wrażenie, jakby pojawił się tam w pełni ukształtowany – bez naruszenia krajobrazu. | Zdjęcie: Karl Vilhjálmsson

Tagi: architektura organiczna architektura w strefie sejsmicznej BREEAM architektura zrównoważona FSC drewno

Budynki zrównoważone

Międzynarodowe lotnisko Gelephu zdobyło tytuł Projekt Przyszłości roku 2025 | Autor projektu: BIG - Bjarke Ingels Group | © BIG
Nowe lotnisko Królestwa Bhutanu, zaprojektowane przez biuro BIG – Bjarke Ingels Group, zostało uh...
Grudzień 3, 2025
Szkoła rzemiosła artystycznego (Herning, Dania) - tradycja rzemiosła w nowoczesnej formie
Europejskie projekty nagrodzone w Holcim Awards 2025 pokazują, że zrównoważone budownictwo to nie...
Listopad 3, 2025

Materiały budowlane

We współczesnych mieszkaniach widać wyraźne przesunięcie akcentów. Matowe powierzchnie dominują...
Grudzień 12, 2025
Klimatyzacja odczuwalnie poprawia komfort, ale sporo osób waha się przed instalacją ur...
Grudzień 9, 2025

Konkursy

Koncepcja będzie miała charakter studium funkcjonalności, mającego przede wszystkim na celu kompleksowe zaplanowanie urbanistyczne Kampusu CKD, przy uwzględnieniu wytycznych Uniwersytetu Medycznego...
Grudzień 12, 2025
Inwestycja, której budżet planowany jest na ok. 50 milionów złotych, ma stanowić odpowiedź na potrzebę utworzenia w mieście nowoczesnej, wielofunkcyjnej przestrzeni, łączącej funkcje kulturalne, ed...
Grudzień 1, 2025