Wnętrza

Luty 11, 2026

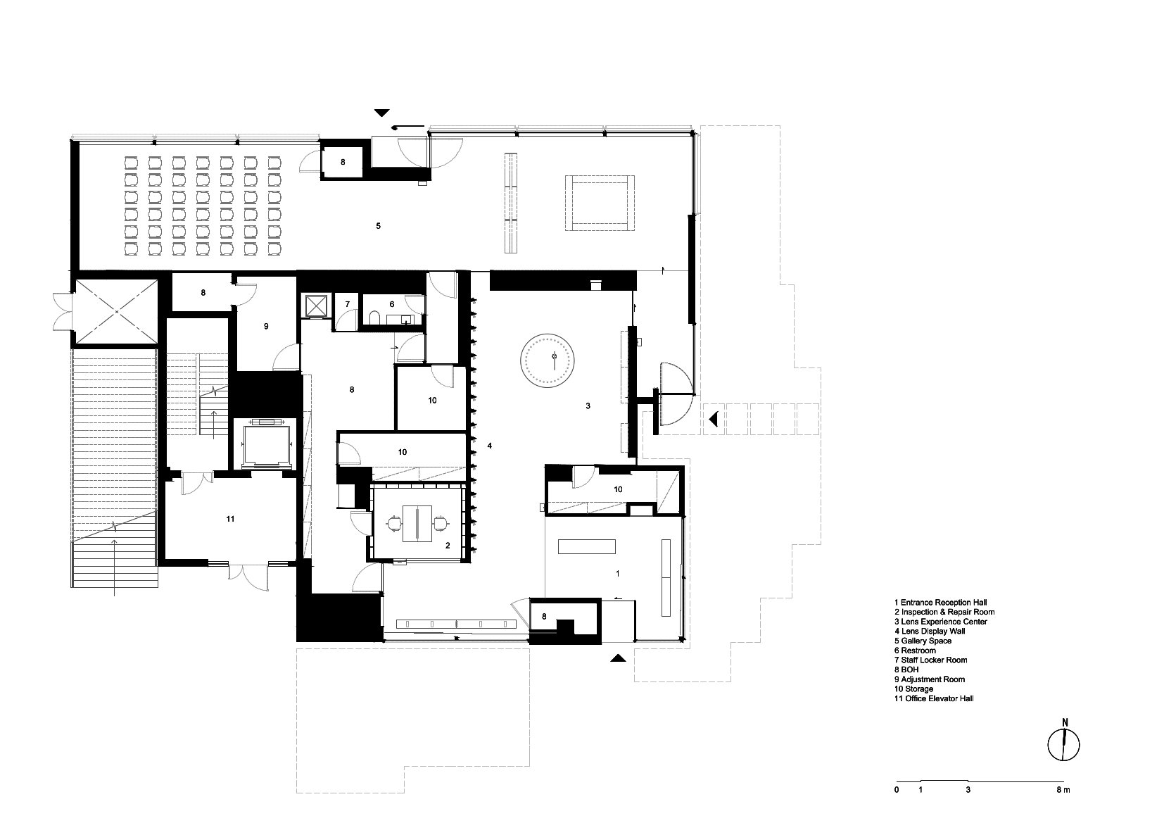
SIGMA Space w Szanghaju – technologia, rzemiosło i sztuka w jednej przestrzeni

fot.: Jonathan Leijonhufvud
fot.: Jonathan Leijonhufvud

W Szanghaju powstała nowa przestrzeń komercyjna marki SIGMA, zaprojektowana przez ONOAA STUDIO. SIGMA China Space to 500 m² konsekwentnie zaprojektowanego wnętrza, które łączy technologię, naturę i sztukę, oddając filozofię marki: Poza technologią jest sztuka. Projekt wpisuje się w aktualne trendy zrównoważonego rozwoju oraz projektowania przestrzeni handlowych, tak aby budować emocjonalną relację z marką.

Przestrzeń oparta na idei „być, tworzyć, widzieć”

Nowa realizacja w Shanghaju integruje trzy funkcje: recepcję, strefę ekspozycji produktów oraz galerię. Układ wnętrza prowadzi użytkownika przez kolejne sekwencje doświadczeń – od pierwszego kontaktu z marką, przez obcowanie z precyzyjnymi obiektami, aż po kontemplację detalu i światła. Projekt odwołuje się do japońskiego dziedzictwa SIGMA, szczególnie do rzemiosła fabryki w Aizu, znanej z dbałości o precyzję i kontrolę jakości.

fot.: Jonathan Leijonhufvud
fot.: Jonathan Leijonhufvud
fot.: Jonathan Leijonhufvud
fot.: Jonathan Leijonhufvud
fot.: Jonathan Leijonhufvud
fot.: Jonathan Leijonhufvud
fot.: Jonathan Leijonhufvud
fot.: Jonathan Leijonhufvud

Materiał, światło i detal

Architekci z ONOAA STUDIO postawili na taktylne materiały, czyli takie których odbiór opiera się nie tylko na tym, jak wyglądają, ale przede wszystkim na tym, jak są odczuwane dotykiem – ich fakturze, temperaturze, oporze, miękkości lub szorstkości. Wybrano także spokojną paletę barw i starannie zaprojektowane oświetlenie. Światło nie tylko eksponuje produkty, ale także buduje atmosferę – ciepłą, wyciszoną i sprzyjającą skupieniu. Detale wnętrza – od faktur po proporcje – wzmacniają narrację o precyzji i artyzmie, z których znana jest marka SIGMA.

Zrównoważony charakter i emocjonalne doświadczenie

Projekt podkreśla znaczenie zrównoważonego rozwoju poprzez trwałe materiały i długowieczne rozwiązania estetyczne. Zamiast efemerycznych efektów wizualnych, przestrzeń oferuje ponadczasowe doświadczenie, budując emocjonalną więź z użytkownikiem i wzmacniając tożsamość marki.

fot.: Jonathan Leijonhufvud
fot.: Jonathan Leijonhufvud
fot.: Jonathan Leijonhufvud
fot.: Jonathan Leijonhufvud

Karta techniczna projektu

  • Klient: SIGMA
  • Lokalizacja: Shanghai, Chiny
  • Powierzchnia: 500 m²
  • Projekt: ONOAA STUDIO
  • Fotografia: Jonathan Leijonhufvud
fot.: Jonathan Leijonhufvud
fot.: Jonathan Leijonhufvud
fot.: Jonathan Leijonhufvud
fot.: Jonathan Leijonhufvud
fot.: Jonathan Leijonhufvud

Tagi: SIGMA wnętrza komercyjne architektura wnętrz

Domy jednorodzinne

widok domu od storny skarpy
Projekt obejmuje dwukondygnacyjny dom jednorodzinny z płaskim dachem (zgodnie z MPZP – jednospado...
Październik 21, 2025
Czy architektura może być czymś więcej niż formą? Czy może stać się doświadczeniem — chwilą, któr...
Wrzesień 11, 2025

Konkursy

Edycja 2026 ma wyróżniać realizacje, które łączą kreatywną wizję z kulturową i społeczną odpowiedzialnością.
Luty 23, 2026
GOLD WINNER, GLADE HOUSE, TAN CHER MING, Studio MING ARCHITECTS, Copyright STUDIO PERIPHERY, Singapore
The Houzee Awards 2026 is now open for entries. Returning for its 4th edition, this acclaimed platform continues to spotlight bold, beautiful, and groundbreaking work in residential design worldwid...
Luty 16, 2026

Materiały budowlane

Zdjęcie: istockphoto.com
Wybór odpowiedniego grilla do ogrodu może być wyzwaniem, ale klucz leży w rozważeniu swoich pref...
Luty 25, 2026
Mieszkanie mid-century łączy design z lat 50. i 60. XX wieku z praktycznością, jakiej oczekuje s...
Luty 18, 2026

Polska Świat

Projekt roku 20205 według Architecture MasterPrize: Sports and Cultural Center Marie José Perec and Joséphine Baker – Onze04 Architectes
W tej edycji konkursu oceniane były realizacje architektoniczne z 72 krajów. Konkurs potwierdza r...
Marzec 2, 2026
Casa Tao w Puerto Vallarta (Meksyk) - fasada południowo-zachodnia | Zdjęcie: Hugo Tirso Domínguez
Casa Tao to przykład współczesnej architektury mieszkaniowej, w której strategie pasywne – orient...
Luty 16, 2026

Wzornictwo

Pierwsza nagroda w konkursie Roca One Day Design Challenge 2022: „SAFESPACE” – Dzianis Pilipuk
Zadaniem było zaprojektowanie innowacyjnych rozwiązań łazienkowych w ciągu kilku godzin, na podst...
Listopad 27, 2022
Instalacja artystyczna „Pisklę”, autor: Joanna Rajkowska
Nowoczesna instalacja artystyczna – dwumetrowe, akustyczne jajo drozda śpiewaka autorstwa artystk...
Maj 25, 2021