Polska i Świat

Sierpień 25, 2025

Gambit Office nagrodzony International Architecture Award 2025

Gambit Office | autor projektu: Robert Konieczny KWK Promes | fot.: Juliusz Sokołowski
Gambit Office | autor projektu: Robert Konieczny KWK Promes | fot.: Juliusz Sokołowski

Budynek Gambit Office, autorstwa KWK Promes, został uhonorowany nagrodą the International Architecture Award 2025 w kategorii budynek biurowy.

International Architecture Award 2025 w kategorii budynek biurowy.

Konkurs organizowany jest przez The Chicago Athenaeum: Museum of Architecture and Design oraz The European Centre for Architecture Art Design and Urban Studies - instytucje promujące najbardziej innowacyjne i wartościowe realizacje architektoniczne z całego świata.

W tym roku jury stanęło przed wyjątkowo wymagającym zadaniem — do konkursu zgłoszono rekordową liczbę ponad 500 projektów z różnych kontynentów. Wśród nich znalazł się Gambit Office, który został doceniony za swoją spójną koncepcję, funkcjonalność i dialog z otoczeniem.

Gambit Office – kiedy materiał staje się wizytówką

Firma zajmująca się dystrybucją specjalistycznych rur Gambit zleciła  projekt budynku biurowo-magazynowego, który miał być jej wyjątkową wizytówką. Poproszono jednak projektantów, aby maksymalnie zminimalizować koszty. Dlatego też architekci wpadli na pomysł, aby wykorzystać materiał, którym handluje firma i który nabędzie też po kosztach. Chcieli jednocześnie, aby części biurowa i magazynowa tworzyły jednolitą całość. W rezultacie zaprojektowali budynek tak, aby wyglądał, jak skład rura.

Gambit Office | autor projektu: Robert Konieczny KWK Promes | fot.: Juliusz Sokołowski
Gambit Office | autor projektu: Robert Konieczny KWK Promes | fot.: Juliusz Sokołowski
Gambit Office | autor projektu: Robert Konieczny KWK Promes | fot.: Juliusz Sokołowski
Gambit Office | autor projektu: Robert Konieczny KWK Promes | fot.: Juliusz Sokołowski

Zagospodarowanie terenu a architektura biurowca

W miejscu inwestycji stała niegdyś prostopadłościenna hala produkcyjna, jednak bezpośrednie sąsiedztwo stanowią domy mieszkalne ze stromymi dachami, do których często przylegają długie, kubiczne obiekty gospodarcze. Zainspirowało to finalną formę budynku.

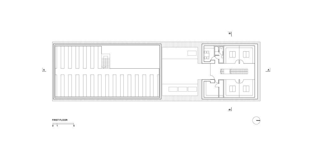
Trzy główne funkcje budynku – magazyn, warsztat do przygotowywania zamówień oraz część biurowa – znalazły swoje odzwierciedlenie w bryle: dwukondygnacyjna część ze skośnymi ścianami mieści biura, niższa sekcja pełni funkcję warsztatu, a wyższy prostopadłościan to nieogrzewany magazyn.

Sposób ułożenia rur determinował nachylenie dachu. Układ rur w skosie daje jedyny możliwy kąt pochylenia, stąd wynikowy kształt tej części budynku. Część biurowa z pochyłym dachem została ścięta na poziomie drugiej kondygnacji, gdyż przekraczałaby dopuszczalną w planie miejscowym wysokość, a jej dodatkowa kubatura byłaby niepotrzebna.

Budynek Gambit od strony ulicy formuje pierzeję, podczas gdy patrząc od dzielnicy mieszkalnej, jego rozczłonkowana bryła wpisuje się w rozproszony kontekst.

Gambit Office | autor projektu: Robert Konieczny KWK Promes | fot.: Juliusz Sokołowski
Gambit Office | autor projektu: Robert Konieczny KWK Promes
Gambit Office | autor projektu: Robert Konieczny KWK Promes
Gambit Office | autor projektu: Robert Konieczny KWK Promes

Materiał fasady

Fasada ostatecznie nie powstała z rur Gambit, przeznaczonych do układania pod ziemią, bo okazało się, że utleniają się pod wpływem promieni UV i nie spełniają wymogów przeciwpożarowych. Zamiast tego sięgnięto więc po niedrogą, surową blachę aluminiową, która nie tylko była tańsza, ale także sprawdzona we wcześniejszych realizacjach, takich jak Dom OUTrialny, Unikato czy Arka Koniecznego. Materiał ten z czasem pokrywa się patyną, nabierając matowego, surowego charakteru, przypominającego beton. Co istotne, blacha ta jest niezwykle trwała i praktycznie niezniszczalna, co czyni ją bezproblemową w eksploatacji.

Rury na krawędziach budynku zostały zaślepione, by nie dźwięczały na wietrze. Choć początkowo inwestorzy obawiali się, że budynek może stać się schronieniem dla różnych zwierząt, finalnie zrezygnowano z montażu siatek przeciw ptakom. W projekcie zabezpieczenia były przewidziane, ale im dłużej projektanci o tym myśleli, tym bardziej skłaniali się ku temu, że to dobrze, jeśli ptaki polubią ten budynek i zyska on dodatkową funkcję. Zaczęli przekonywać do tego inwestorów.

Wnętrza biurowe i magazynowe

Wnętrza są dobrze doświetlone przez klasyczne okna i świetliki dachowe. W pomieszczeniach biurowych na parterze przeznaczonych na stały pobyt ludzi, pracownicy mają klasyczne przeszklenia z widokiem na zielony ogródek wykrojony z przestrzeni parkingów. Część magazynowa i pomieszczenia pomocnicze na piętrze, które potrzebują ustawnych ścian, zostały doświetlone świetlikami dachowymi.

Budynek pełni funkcję stricte przemysłową i otacza go głównie parking dla samochodów osobowych i ciężarowych, dlatego na dachu najniższej części zaprojektowany został taras wypoczynkowy dla pracowników.

Gambit Office | autor projektu: Robert Konieczny KWK Promes | fot.: Juliusz Sokołowski
Gambit Office | autor projektu: Robert Konieczny KWK Promes | fot.: Juliusz Sokołowski
Gambit Office | autor projektu: Robert Konieczny KWK Promes | fot.: Juliusz Sokołowski
Gambit Office | autor projektu: Robert Konieczny KWK Promes | fot.: Juliusz Sokołowski

Karta techniczna projektu

  • Nazwa: Gambit Office
  • Lokalizacja: Gliwice
  • Autorzy: Robert Konieczny KWK Promes
  • architekci: Robert Konieczny, Michał Lisiński
  • Współpraca: architects Katarzyna Pająk, Karol Jackiewicz, Karol Knap, Krzysztof Kobiela
  • Projekt wnętrz: Robert Konieczny KWK Promes
  • Projekt krajobrazu: Robert Konieczny KWK Promes
  • Konstrukcja: Firma Inżynierska STATYK
  • Inwestor: Gambit Systems
  • Powierzchnia terenu: 3043,81 m2
  • Całkowita powierzchnia zabudowy: 714,84 m2
  • Powierzchnia użytkowa: 943,42 m2
  • Powierzchnia całkowita: 1285, 21 m2 w tym:
  • hala magazynowa: 751 m2
  • część wspólna z funkcjami socjalnymi: 156,4 m2
  • pomieszczenia biurowe: 377,81 m2
  • Kubatura: 5366,53 m3
  • Projekt: 2013
  • Realizacja: 2024

Tagi: budynek biurowy nagroda architektoniczna Gambit Office

Domy jednorodzinne

widok domu od storny skarpy
Projekt obejmuje dwukondygnacyjny dom jednorodzinny z płaskim dachem (zgodnie z MPZP – jednospado...
Październik 21, 2025
Czy architektura może być czymś więcej niż formą? Czy może stać się doświadczeniem — chwilą, któr...
Wrzesień 11, 2025

Wasze realizacje

Wilanów od lat przyciąga tych, którzy szukają balansu pomiędzy rytmem miasta a spokojem przedmieś...
Październik 15, 2025
Bardzo wytrymałe na obciążenia półki na wymiar bez widocznych wsporników. Nr projektu 3669 https...
Sierpień 22, 2025

Materiały budowlane

Rok 2026 przynosi świeże spojrzenie na design i funkcjonalność wnętrz, a marka PORTA DRZWI po ra...
Styczeń 29, 2026
Zadaszenia ogrodowe pełnią wiele funkcji - chronią przed kapryśną pogodą i jednocześnie podnoszą...
Grudzień 22, 2025

Konkursy

GOLD WINNER, GLADE HOUSE, TAN CHER MING, Studio MING ARCHITECTS, Copyright STUDIO PERIPHERY, Singapore
The Houzee Awards 2026 is now open for entries. Returning for its 4th edition, this acclaimed platform continues to spotlight bold, beautiful, and groundbreaking work in residential design worldwid...
Luty 16, 2026
The Kaira Looro 2026 competition invites the design of a Community Center: an architecture that embodies inclusion and resilience, capable of hosting educational, social, and cultural functions.
Luty 16, 2026